找回密码
 注册

QQ登录

只需一步,快速开始

搜索
查看: 10559|回复: 1

[其它] 机械cad

[复制链接]
用户头像
用户组图标 决裁你老妈 2012-4-8 09:16:49 | 显示全部楼层
|

  机械cad

png.gif
       
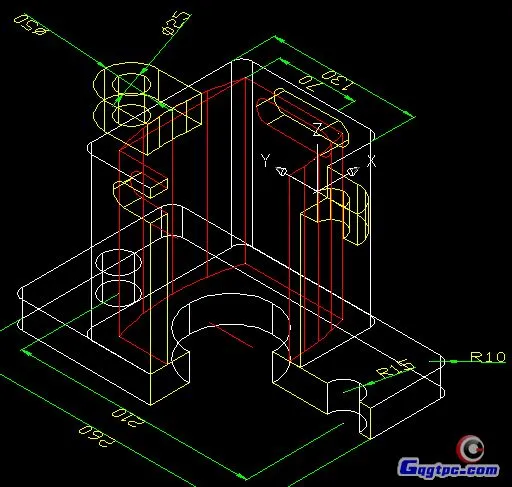
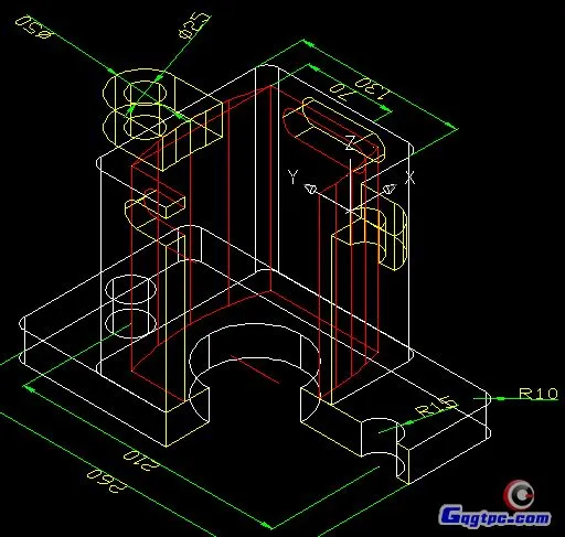
png.gif 这是我做的练习图纸请大家指教


用户头像
用户组图标 gaoyufat 2012-4-12 20:06:25 | 显示全部楼层
|  

   
LZ是不是发错版块了
您需要登录后才可以回帖 登录 | 注册 用QQ帐号登录

本版积分规则

一键重装系统|雨人系统下载|联系我们|网站地图|过期罐头电脑论坛

GMT+8, 2025-12-13 15:00 , Processed in 0.053644 second(s), 29 queries .

官方免责声明:本站内容来自网友和互联网.若侵犯到您的版权.请致信联系,我们将第一时间删除相关内容!

Powered by Discuz!

专注于win7_win10_win11系统下载装机

© 2010-2025 GQGTPC.Com

快速回复 返回顶部 返回列表